E: info@teamresourcesinc.com | P: 201.438.1177

50793 sf, East Rutherford | Bergen County NJ

Real Estate Services

Available: 50,793 SF

EXCLUSIVE LISTING
Lease
Industrial
#23887
46 Whelan Road
East Rutherford, NJ  07073
Location
County Bergen
Space
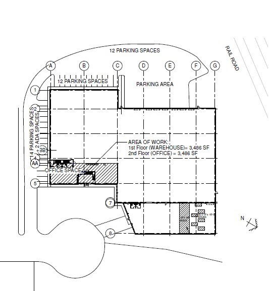
Available 50,793 SF
Total Bldg 50,793 SF
Office 4,400 SF
Divisible NO
Available Immediately
Acreage 3.5
Pricing
Sale Price
W/H Lease
Office Lease
Taxes $ 248,886 $ 4.90/SF
CAM $ 1.11/SF
Features
Ceiling Hgt 28 - 30
Loading TG/DI 7 / 1
Col Spacing 53'w x 40'd
Parking 40 cars
Rail NO
Sprinkler wet
Heat gas
Power 400 amps/ 480 volts/ 3 ph
Year Built 2006
  • Available: 50,793 SF
  • Available: 50,793 SF
  • Available: 50,793 SF
  • Available: 50,793 SF
Lease Price Upon Request. Opex: $1.11 psf.
Additional Info
Find Out More
EricLewin
Eric Lewin
201.438.1177 x107
201.832.4569




All information is furnished from sources deemed reliable; however we have not verified it and it is submitted subject to errors, omissions, change of price, prior sale or lease, or withdrawal without any notice. No representation is made as to zoning, physical condition, fire sprinkler adequacy or environmental status of any property and prospective purchasers/tenants are urged to conduct whatever independent investigations they, their attorneys and advisors deem necessary to confirm that a property is suitable for the intended use. Any commissions due cooperating brokers are subject to all terms and conditions upon which we and our clients have agreed.

1050 Wall Street West | Lyndhurst, NJ 07071

info@teamresourcesinc.com | 201.438.1177

©2026 Team Resources, Inc. | Site Design by Kraus Marketing & SBS, Inc.