E: info@teamresourcesinc.com | P: 201.438.1177

Two Buildings 15,285 SF | 15285 sf, Carlstadt | Bergen County NJ

Real Estate Services

Two Buildings 15,285 SF

OTM
Sale
Industrial
#23206
[-address on file-]
Carlstadt, NJ  07072
Location
County Bergen
Space
Available 15,285 SF
Total Bldg 15,285 SF
Divisible min: 2,535 SF
max: 12,750 SF
Acreage 0.48
Pricing
Sale Price
W/H Lease
Office Lease
Taxes $ 19,083 $ 1.25/SF
CAM $ 0.00/SF
Features
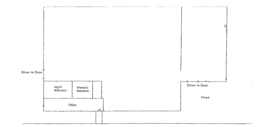
Ceiling Hgt 14 - 0
Loading TG/DI 0 / 3
Rail NO
Heat gas
Sale Price TBD. Consists of 2 buildings. Bldg 1: 12,750 sf & has 2 DI doors. Bldg 2: 2,535 sf & has 1 DI door, 1,200 sf of Mezzanine (not included in sq. ft. of building).
Find Out More
AlexRosenberg
Alex Rosenberg
201.438.1177 x135
551.427.8835

DavidCantor
David Cantor
201.438.1177 x105
201.314.2495




All information is furnished from sources deemed reliable; however we have not verified it and it is submitted subject to errors, omissions, change of price, prior sale or lease, or withdrawal without any notice. No representation is made as to zoning, physical condition, fire sprinkler adequacy or environmental status of any property and prospective purchasers/tenants are urged to conduct whatever independent investigations they, their attorneys and advisors deem necessary to confirm that a property is suitable for the intended use. Any commissions due cooperating brokers are subject to all terms and conditions upon which we and our clients have agreed.

1050 Wall Street West | Lyndhurst, NJ 07071

info@teamresourcesinc.com | 201.438.1177

©2026 Team Resources, Inc. | Site Design by Kraus Marketing & SBS, Inc.