E: info@teamresourcesinc.com | P: 201.438.1177

26929 sf, South Hackensack | Bergen County NJ

Real Estate Services

Available: 26,929 SF

EXCLUSIVE LISTING
Lease
Industrial
#16717
150 Wesley Street - Unit 3
South Hackensack, NJ  07606
Location
Submarket Meadowlands
County Bergen
Space
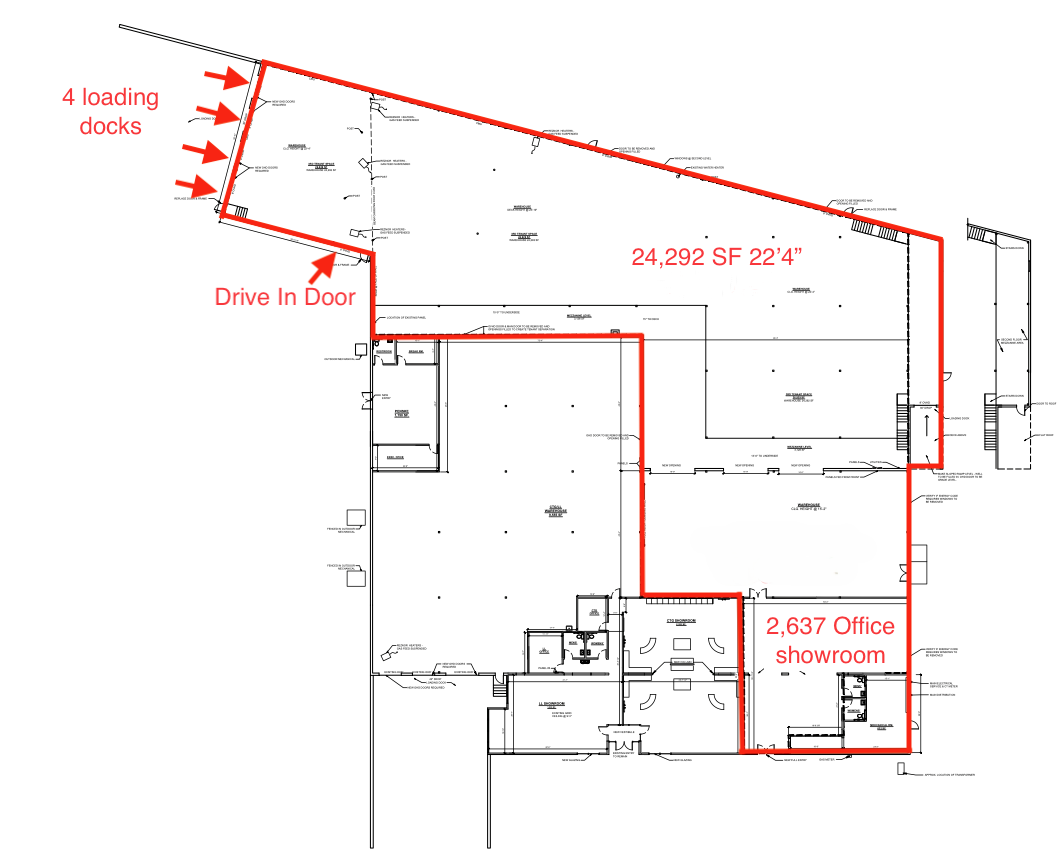
Available 26,929 SF
Total Bldg 47,000 SF
Office 2,637 SF
Divisible NO
Available June 1, 2026
Acreage 2.1
Pricing
Sale Price
W/H Lease $ 17.00/SF
Office Lease
Taxes $ 173,430 $ 3.69/SF
CAM $ 0.00/SF
Features
Ceiling Hgt 14 - 22
Loading TG/DI 4 / 1
Parking ample
Rail NO
Sprinkler wet
Heat gas
Power 1,000 amps/ 3 phase
  • Available: 26,929 SF
  • Available: 26,929 SF
  • Available: 26,929 SF
  • Available: 26,929 SF
$0.36 psf Insurance
Find Out More
EricLewin
Eric Lewin
201.438.1177 x107
201.832.4569

MatthewFavieri
Matthew Favieri
201.438.1177 x131
201.956.2889

Additional Info



All information is furnished from sources deemed reliable; however we have not verified it and it is submitted subject to errors, omissions, change of price, prior sale or lease, or withdrawal without any notice. No representation is made as to zoning, physical condition, fire sprinkler adequacy or environmental status of any property and prospective purchasers/tenants are urged to conduct whatever independent investigations they, their attorneys and advisors deem necessary to confirm that a property is suitable for the intended use. Any commissions due cooperating brokers are subject to all terms and conditions upon which we and our clients have agreed.

1050 Wall Street West | Lyndhurst, NJ 07071

info@teamresourcesinc.com | 201.438.1177

©2026 Team Resources, Inc. | Site Design by Kraus Marketing & SBS, Inc.